







🛡️ Secure your space with style and ease — because safety should never be boring!
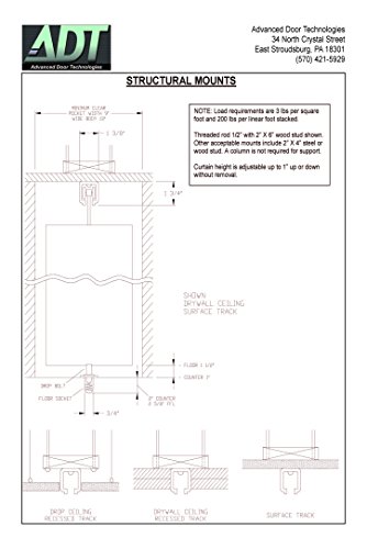
The Alumi-Glass 870S-15X8 Security Gate offers a robust 15' by 8' protective barrier featuring smooth-rolling twin 1-1/8 inch diameter rollers and durable cold rolled steel hanger rods. Its 1/8 inch Lexan inserts provide shatterproof, clear security ideal for high-risk environments like retail, healthcare, and data centers. Designed for easy installation and space-saving storage, this professional-grade grille combines industrial strength with sleek functionality.
| ASIN | B00PT9Z9SK |
| Date First Available | November 19, 2014 |
| Item Weight | 390 pounds |
| Manufacturer | Advanced Door Technologies |
| Product Dimensions | 180 x 6 x 96 inches |
Trustpilot
1 month ago
1 month ago